Торговая марка
основана в 1994 году

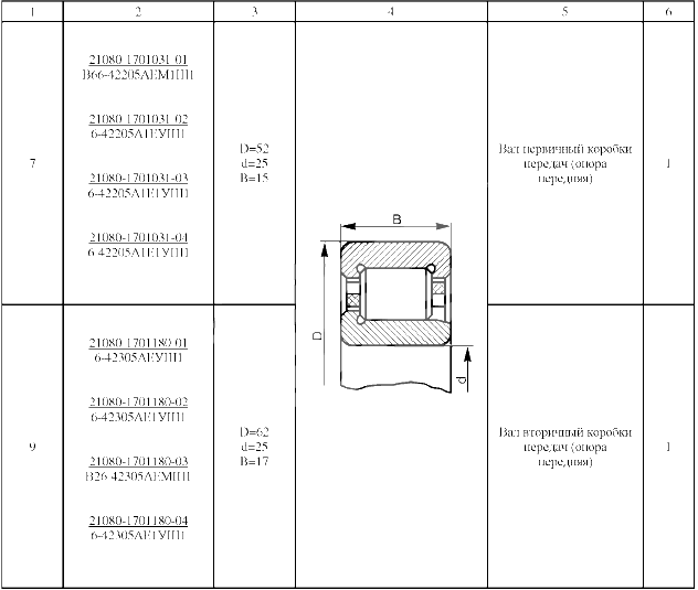
Подшипники № 5

Подшипники № 5